У центрі Івано-Франківська з’являться нові безкоштовні паркомісця для людей з інвалідністю
Про це повідомляє заступник міського голови Михайло Смушак
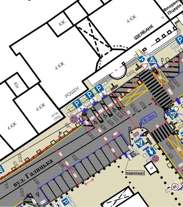
Перші схеми вже розроблені та погоджені з Управлінням патрульної поліції області. Нові місця для паркування облаштують на двох вулицях:
- вул. Гетьмана Мазепи (від Січових Стрільців до Бельведерської);
- вул. Галицька (від Бельведерської до площі Ринок).
За словами Смушака, у центрі міста будуть чітко розділені платні місця та безкоштовні — для осіб з інвалідністю.
У межах нової схеми також облаштують пішохідний перехід через вул. Галицьку на перехресті з вул. Мартинця. Загалом нові схеми мають впорядкувати систему паркування на центральних вулицях міста.
Окрім того, посадовець нагадав, що Верховна Рада України підтримала ініціативу щодо облаштування паркомісць для сімей з дітьми до 3 років — не менше ніж 5% від загальної кількості місць.
“Для людей з інвалідністю це реальна життєва необхідність, а для сімей з дітьми до 3 років — важлива, але інша категорія потреб. Її ще потрібно чітко аргументувати й якісно врегулювати на законодавчому рівні”, — зазначив Смушак.
Реалізувати нові схеми паркування в Івано-Франківську планують до кінця поточного року.





