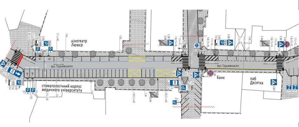
В Івано-Франківську напрацювали нову схему організації дорожнього руху на вулиці Грушевського. Проєкт спрямований на впорядкування руху транспорту, паркування, підвищення безпеки та покращення доступності вулиці для людей з інвалідністю. Ппо це інформує Михайло Смушак.
За проєктом передбачено:
- облаштування антикишені на перехресті з вулицею Вагилевича — для кращої видимості та безпеки пішоходів;
- пониження бордюру біля ресторану «Десятка» та дотримання нормативних відстаней від припаркованих авто до пішохідних переходів;
- облаштування місць для завантаження та розвантаження, що особливо актуально для бізнесів у центральній частині міста.
У міськраді зазначають, що нова схема має зробити рух більш організованим, а перебування на вулиці — безпечнішим та зручнішим для всіх учасників дорожнього руху.


Категорії
Комуналка


